Villa
Neubau eines Einfamilienhauses
Architektur Frank, Winnenden, 2002
großzügige und moderne Villa mit hochwertigem Ausbaustandard
auf einem Hanggrundstück im Neckartal. Haupt-
baukörper entlang der Straße mit eingeschobenem
Wohnbereich/Fitness- und Wellnessbereich
konstruktiver Entwurf, Werkplanung, Detailplanung,
Integration aller technische Systeme, hochwertige Einbaumöbel,
exclusive Bad- und Küchenausbauten,
Gestaltung Fitness- und Wellnessbereich,
Lichtkonzept und Lichtplanung
bis M 1:2

Grundriss Wohnebene, Volumenmodell


Baustellenfotos

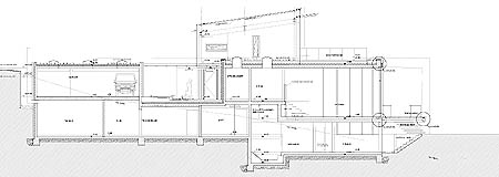
Schnitt

Westansicht

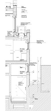
Fassadenschnitte

Detail Sonnenschutz
veröffentlicht mit der Erlaubnis von Architektur Frank, Winnenden
Copyright © seit 2002 Claudio Bergermann
Diese Seite ist Teil eines framesets. Um zur Startseite zu kommen, bitte auf [ Home ] klicken.
Für den Inhalt der extern verlinkten Seiten ist der Autor dieser Seite nicht verantwortlich.